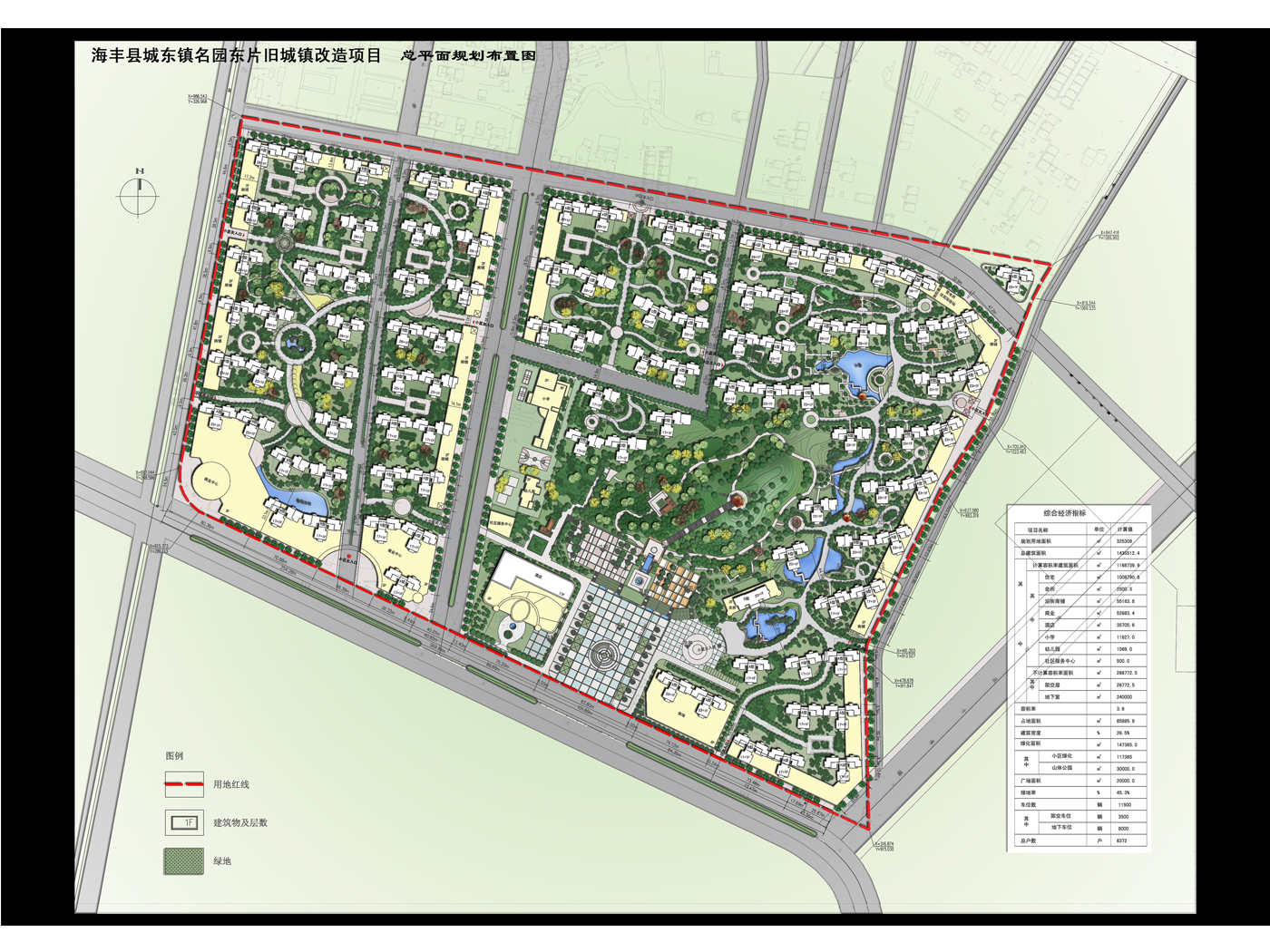
本項目位于海豐縣城東鎮西北,用地面積243963㎡,總建筑面積1137581.73㎡。場地四面環路,規劃設計充分結合場地現狀,在東部比較完整的地塊規劃成熟的商住休閑小區.
Copyright ? 2017 JXAEDI. All Rights Reserved 建學建筑與工程設計所有限公司 京ICP備14045667號 技術支持:云勛網絡